Data Capture from raster files with Revit
Most Asset Management Property Portfolios will consist of existing buildings. Generally new buildings coming into the portfolio will be a small percentage of the total.
Information about existing buildings will most probably be scanned (Raster) plans and documents from the original As-Built construction drawing set, with some small updates in CAD (Computer Aided Drawing). This is generally what clients have received from designers & contractors. New buildings may be done in BIM (Building Information Models).
- Speed up the tedious stuff and enjoy designing and documentation more
- Works in all versions of Revit
- Information to PROVE your increased speed
In Why use BIM for Data Capture for New & Existing Buildings? I recommend using BIM for capturing Asset Information as you get the most return for the least effort compared to the other alternatives of data capture.
In this post I want to talk about converting from Legacy information to creating BIM.
The method I’ve used in the past is to bring the image in as an image file (note- PDF needs to be converted to image file Revit does not recognise PDF’s) & draw Revit Walls over the plan.

Then we draw walls over the existing raster image as per this video.
Another method I’ve been exploring is using a PDF or JPG or other non Vector file type and converting them (usually scanned drawings are in a Raster format (pixels) JPG, TIFF, PDF etc). We need to change this to a Vector format, either a DWG or DFX format.
Revit has a process where, if you use a DWG or DXF underlay imported/linked to the model you can create a WALL by using the PICK LINE tool. This only works with a DWG or DXF format as they have LINES (Raster formats do not have lines, they have pixels of different colours).
So we need to convert the Image File to a Vector Format (DWG or DXF).
Method 1 Convert from PDF to DWG with ZAMZAR Free ONLINE converter
Online converter from PDF to DWG:
- Converting PDF documents to DWG drawings
- Use https://www.zamzar.com/convert/pdf-to-dwg/ to convert the PDF plan to DWG file

This web page then sends you a file link to download your converted file.
You can then open Revit to a New Project and 
Offline converter from JPG to DXF using WinTopo Freeware
We can use Wintopo Freeware (Download here). This programme takes an image file and converts it to a DXF file (DrawingExchange Format) . This adds a step to the process if you want a DWG file format (or you need to clean the drawing up (eg Delete some text that is in the way). You have to open the DXF file in DraftSight & Change it to DWG format.
You still need to scale the file prior to drawing the lines, this could be in DraftSight or in Revit.
- Item 1 – upload Image file
- Item 2- Save Vector File
- Item 5- 1 button Raster to DXF vector
- Items 3- Raster View
- Item 4- Vector View
Items 3 & 4 are nice as you can overlay the vector on the raster image to see the alignments of pre/post scan.
I have only tested this on a screenshot of a Revit drawing (so nicely aligned) and it worked very well (as per above image). More than adequate for drawing walls over Imported CAD file.
Comments on Conversions
In both processes you do need a dimension on the Drawing (or know a dimension of some large length) so that you can scale the DWG/DXF to correct scale before you trace the lines. Dimensions like Overall Length are good, you get a far more accurate scaling than a small dimension such as between 2 internal walls (say 3-5m).
Aligned walls are also important. In original scanners a lot were feed types where the drawings were fed through rollers. If the sheet was mis-aligned then the whole sheet could be rotated say 5 degrees. As long as this is consistent across the sheet you just need to rotate the imported/linked file.
Also, as scans are pixels, if the line is not exactly straight, the pixels end up as a double row where the line transitions from one grid of pixels to another. Also, if the original drawings are hand drawn, the different thicknesses of pencil/pen strokes also has an influence on Line width variability.
The 2 examples above I am using Free Scanners, they cannot clean up the drawings like other more sophisticated scanners. If you were doing a large amount of conversions for capturing data for modelling into BIM I would recommend that you explore paying for a higher quality programme for conversion, although most are not cheap. That being said, there are some where you pay a subscription for accessing their programme, that may be a more economical method.
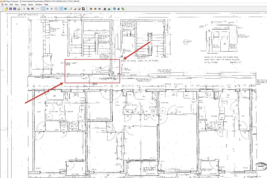
Below an example of a hand drawn plan scanned. The Raster Image.

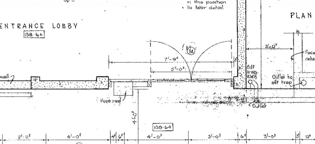
The Raster Image. A zoom in on a portion of the original, lines do not look perfectly straight, but not too bad either, note the smudgy area in bottom middle right of image

This is the VECTOR scan, note that smudgy area has come through too, also the green lines look jagged

The zoomed in area shows the VECTOR lines are pretty messy. I did test the WALL command with PICK LINE on the Walls and they were short, but adequate to do a TRIM command to fillet walls at right angles.
( Note- in the Raster image file you could go into a Programme like PAINT and rub out the smudgy area prior to doing the scan. )

I would suggest that if the lines were too jagged then you just use the TRACE method mentioned at the beginning of the article. A slightly longer process but not too much longer once you are used to using that process.
Below is video of Raster imported to Revit and Walls created using Pick Line. Video (6.26Min)
As the video shows even with a fuzzy line from conversion the DXF file is still able to be used to place Revit walls using the Pick Line method. It is quicker if you zoom in to the walls as if you are zoomed out it seems to take a long time to analyse which wall you have picked and slows the process down.